-
From $559 pw
-
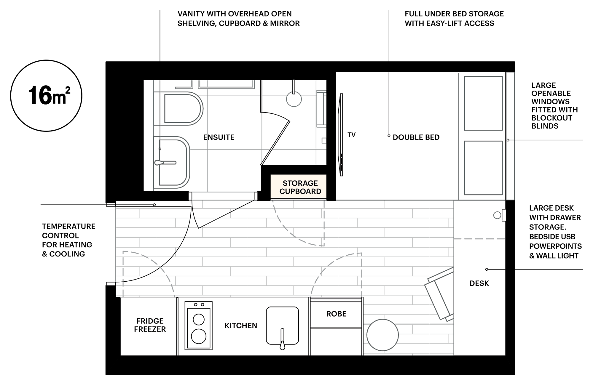
16m2
-
1 Resident
-
1 Bathroom
The private, self-contained Standard Studio features a comfy double bed, a stylish kitchen with modern appliances and an ensuite bathroom. It also includes desk area, TV, unlimited Wifi and air conditioning.
Book this room
















